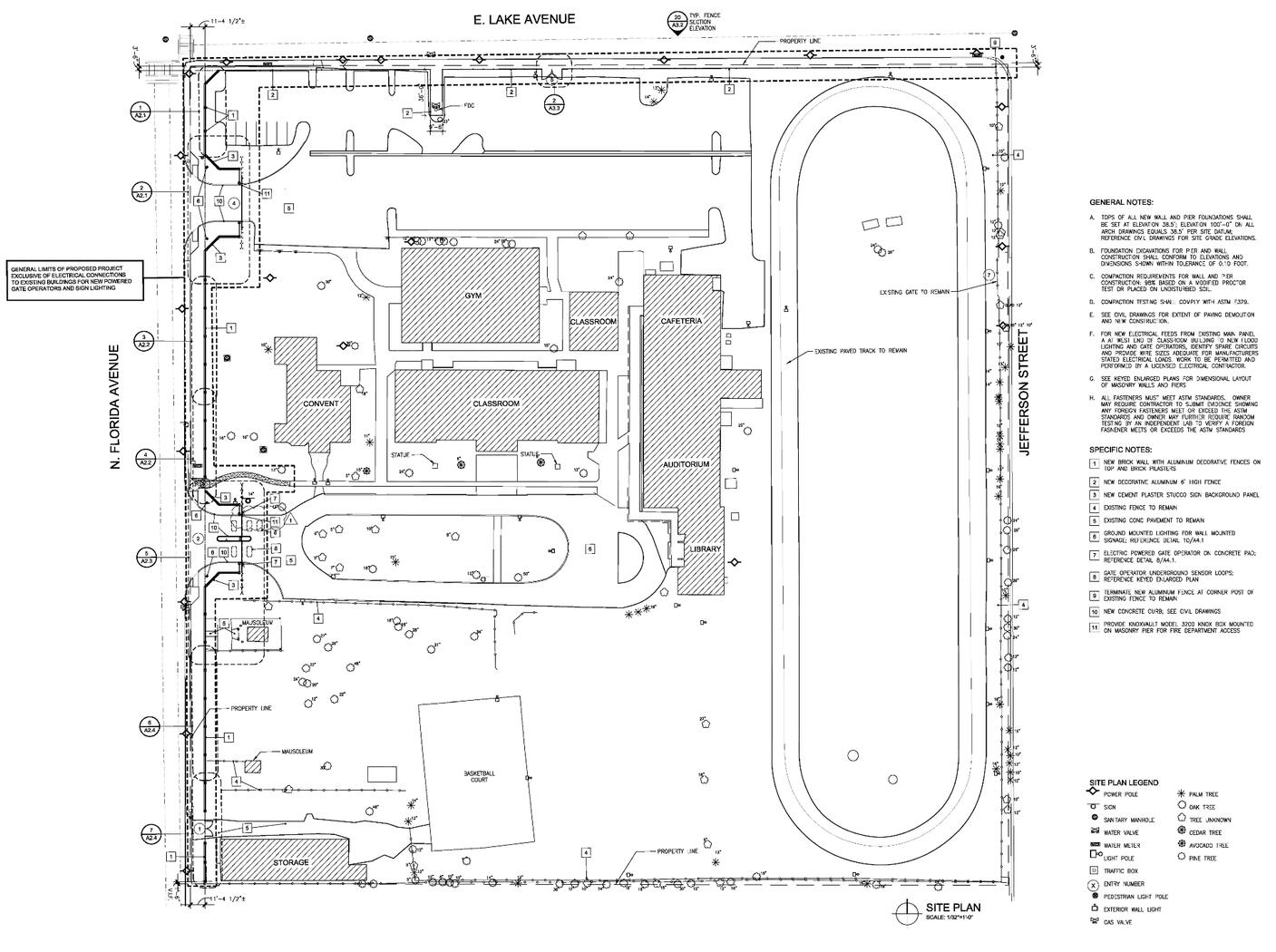
Sacred Heart Fence
Tampa, Florida
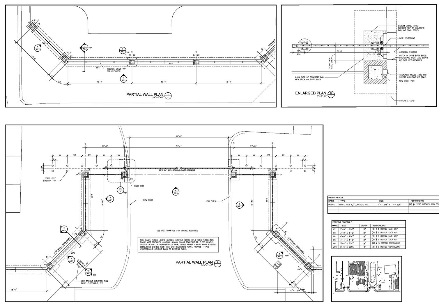
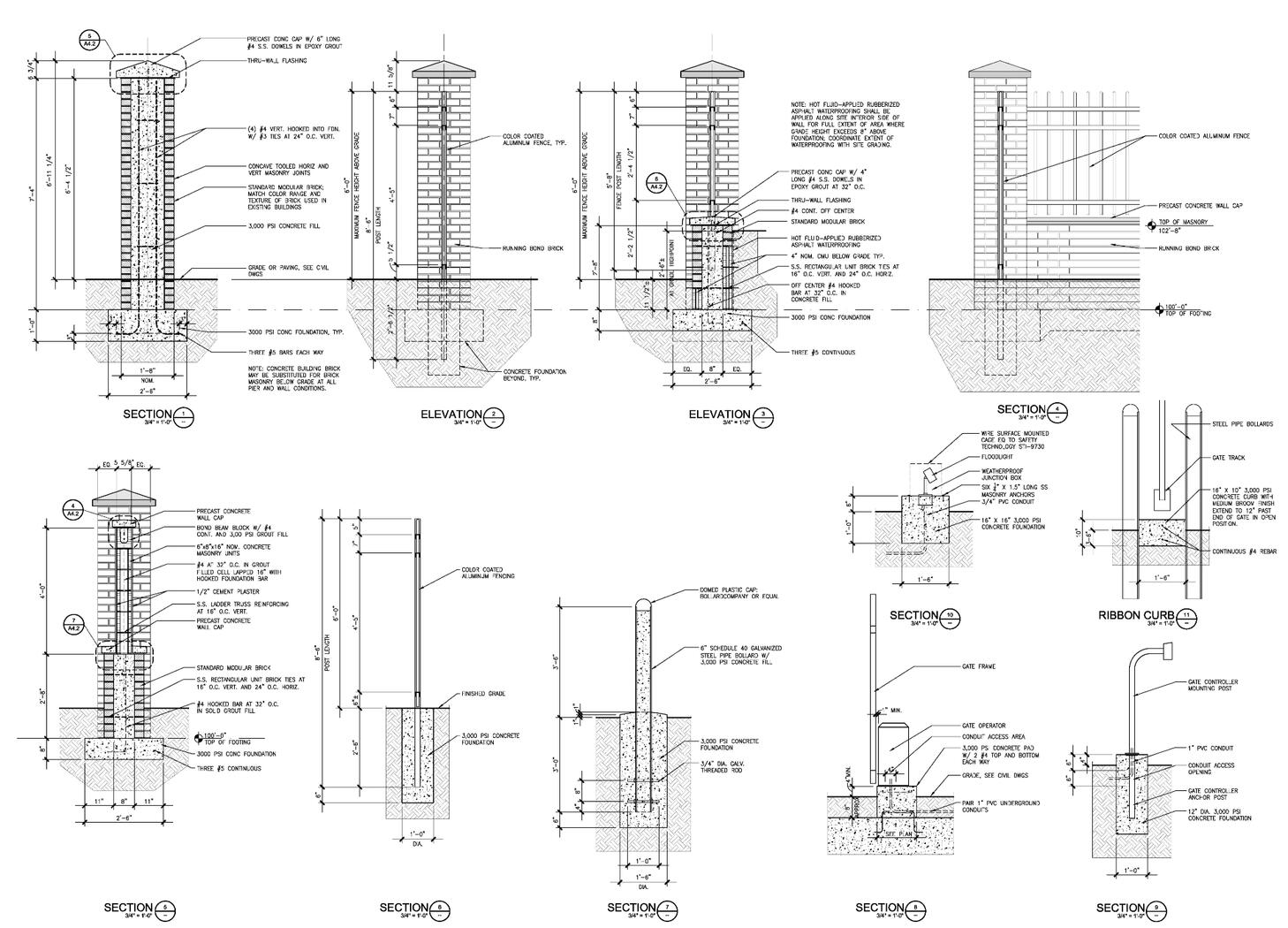
The Sacred Heart North Campus Fence Renovation was a $800,000 project. It is the phase I of a major campus renovation that includes two main automatic gates and a third manual gate covering around the campus; new path and gardening was implemented incrementing the property aesthetic and value.









